PROJEKTE UND REFERENZEN | THYEN DIGITAL 3D-SCAN

Am aussagekräftigsten über uns sprechen die Erfahrungen und die unterschiedlichen Projekte unserer Kunden.

Digitales Aufmaß eines Wohnhaus

3D-Scan und Aufmaß Wohnhaus in Wilhelmshaven

Digitale Vermessung von Büro- und Lagerhalle

3D-Laserscanning und Aufmaß eines Hoftores in Haren

Digitales Aufmaß eines Wohnhaus zur Grundrisserstellung

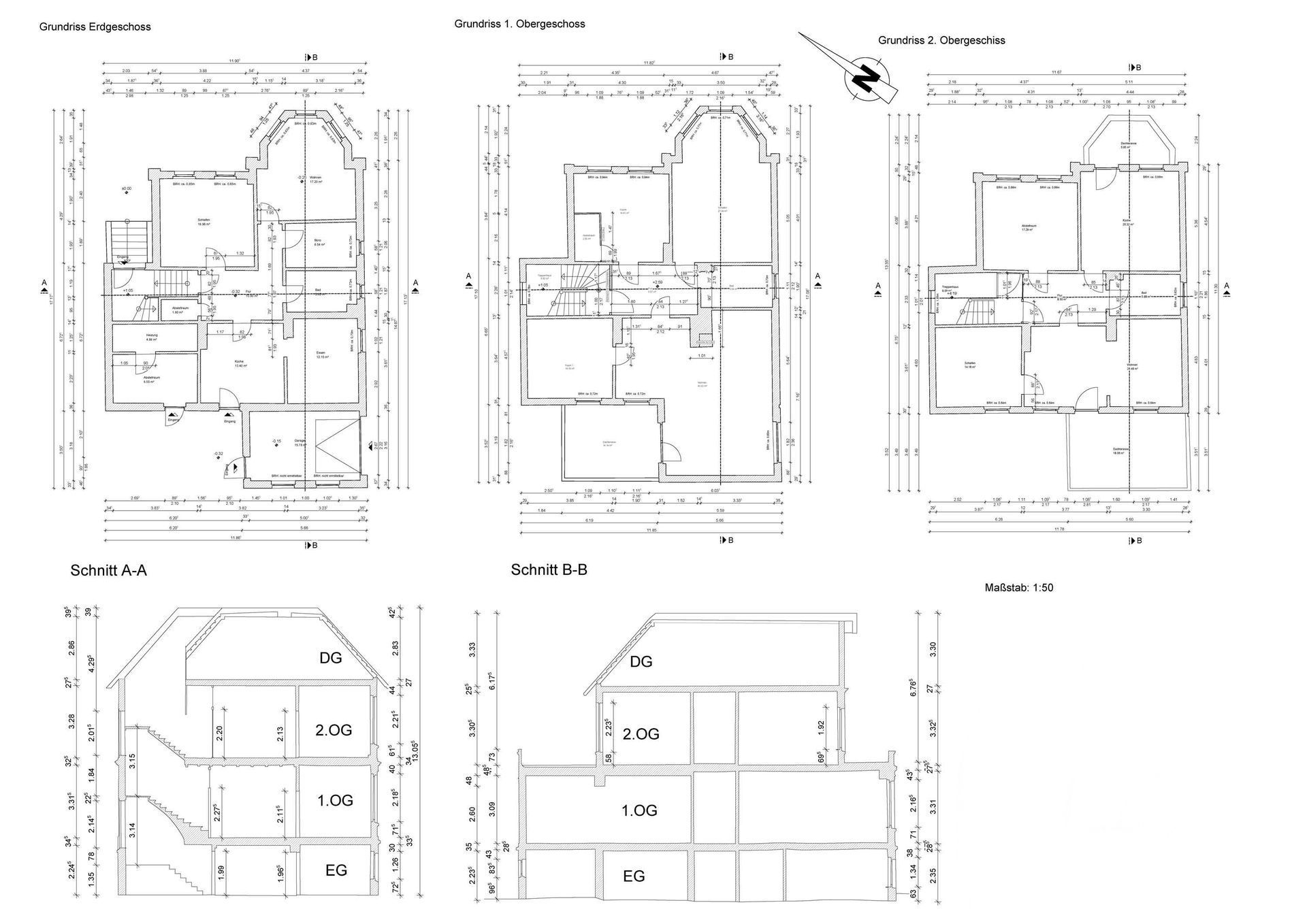
3D-Aufmaß Wohnhaus in Oldenburg zur Grundriss- und Schnitterstellung

3D-Laser-Vermessung eines Gebäudes in Hamburg zur Grundrisserstellung

Digitales Aufmaß eines Wohnhaus in Oldenburg zur Grundriss- und Schnitterstellung

Nehmen Sie Kontakt auf